Toggle navigation
home
Über mich
Portfolio
Neubau
Bestand
Zeichnen
Modellbau
Kontakt
Projekte der Kategorie "Bestand"
Home
Bestand
Mehringdamm 69
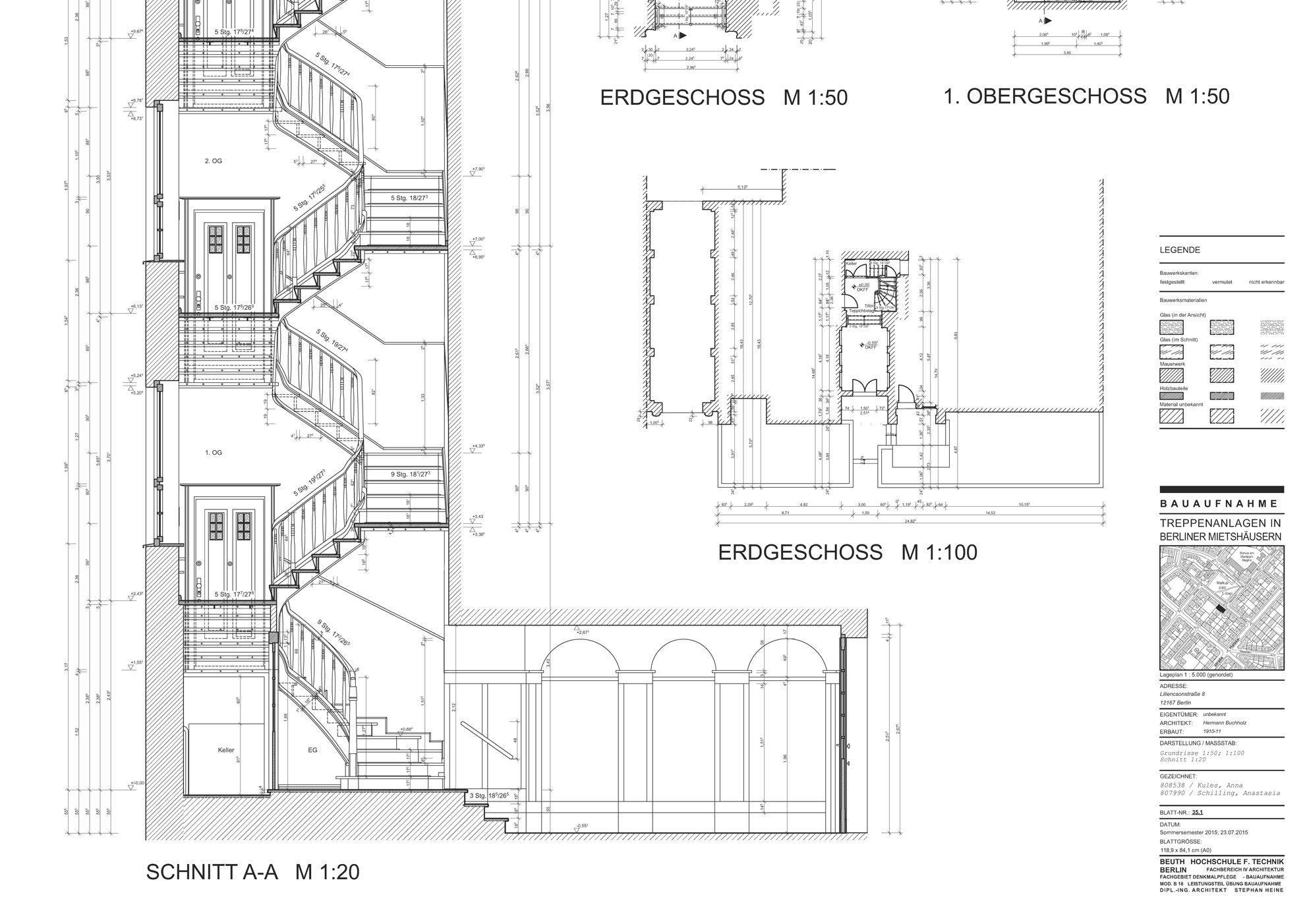
Berliner Mietshäuser der Kaiserzeit
Bauaufnahme - Treppenanlagen
Recherche zu den U-Bahnhöfen