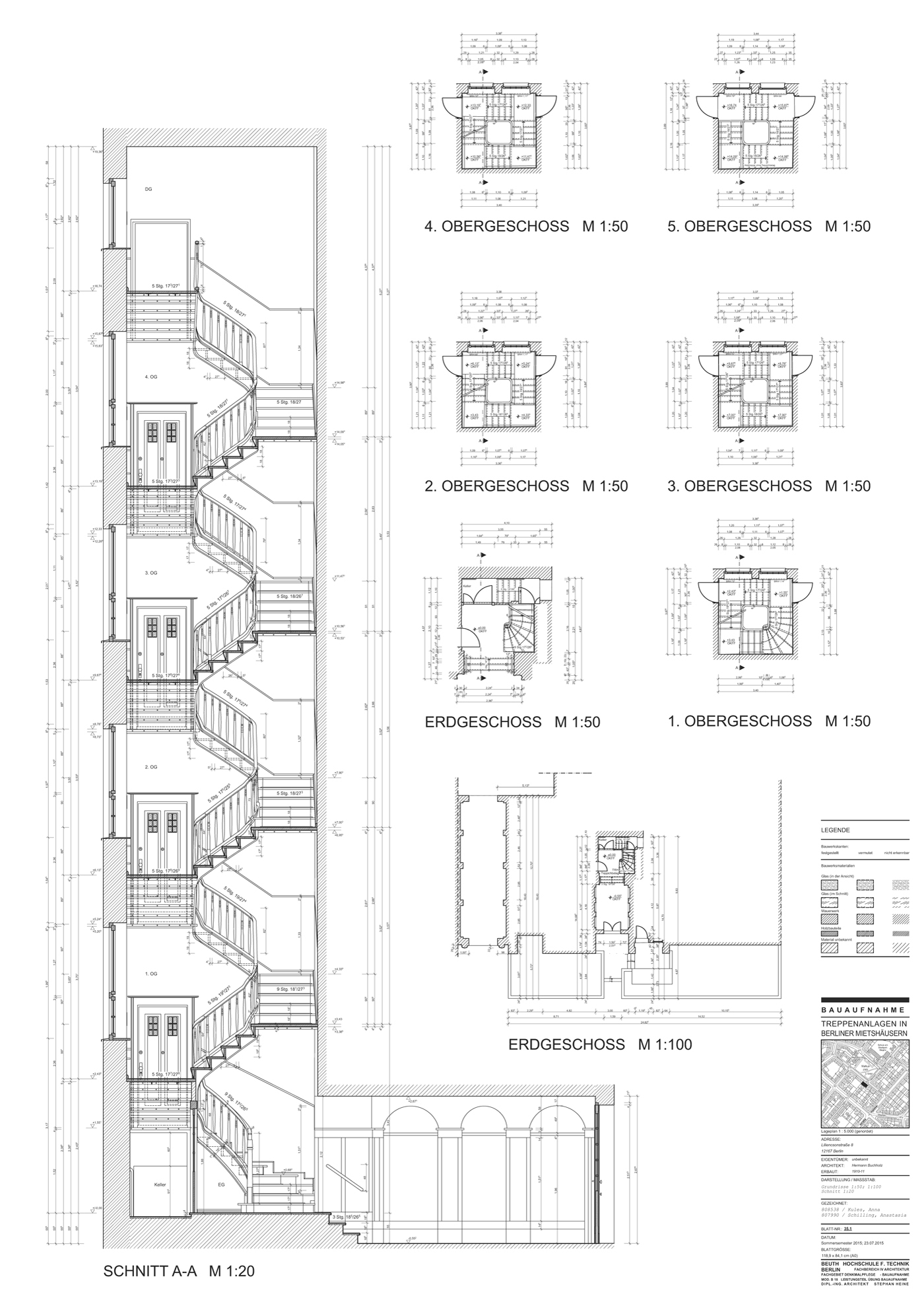
Treppenanlagen in Berliner Mietshäusern - Liliencronstraße 8

Der Gegenstand dieser Arbeit beinhaltet das Aufmass einer Treppe in einem Berliner Mietshaus aus der Zeit vor 1945. Ausgewählt wurde die vierläufige Treppe im Haus 8 in Liliencronstraße aus dem Baujahr 1910-1911 vom Architekt Hermann Buchholz. Zur Bestimmung der Podesthöhen wurde Höhennivellement durchgeführt und eine Nivelliertabelle erstellt. Als Grundlage für die Zeichnungserstellung (neben der Auswertung der Nivelliertabelle) dienten mehrere Handskizzen, die mithilfe von unterschiedlichen Aufmassmethoden vor Ort erfasst/angefertigt wurden. Die Arbeit wurde in einer 2-er Gruppe ausgeführ.

Gerne sende ich Ihnen ein detailliertes Portfolio. Bitte nutzen Sie das Kontaktformular um einen Zugang zum geschützten Bereich zu erhalten.